Uitbreiding Montessori College Oost
Opdrachtgever
MCOA Amsterdam
Lokatie
Polderweg 3, Amsterdam
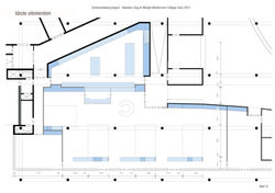
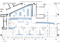
Het Montessori College Oost te Amsterdam is sinds 2000 in gebruik. Met wijzigingen in het programma van onderwijs en door de ervaringen opgedaan na jarenlang gebruik, bleken de ruimtes van de afdeling Zorg & Welzijn niet meer geheel naar behoeven te functioneren. Het gebouw, ontworpen door Architectuurstudio Herman Hertzberger heeft een alom gewaardeerde architectonische kwaliteit. In het schetsontwerp voor de herinrichting van de afdeling Zorg & Welzijn is rekening gehouden met de waarde van het bestaande architectonische ontwerp van de ruimtes. Daarbij is regelmatig overleg gevoerd met de gebruikers. De punten die daaruit naar voren kwamen golden als belangrijke leidraad voor de herinrichting.
Flexibiliteit
Door de oefenruimtes in flexibele boxen te plaatsten kan er tussenruimte ontstaan die gebruikt kan worden al werkruimte. Deze werkruimte kan in grootte variëren, afhankelijk van de plaatsing van de boxen.
De werkboxen kunnen tevens als berging dienen voor het materiaal dat tijdens de lessen wordt gebruikt. In het ontwerp wordt er echter vanuit gegaan dat de kasten voldoende ruimte bieden aan het opbergen van het materiaal.
Ontwerp: Architectuurstudio Radenovic
ism Gilles Trevetin

![]() | ![]() | ![]() |
|---|---|---|
![]() |



